Search

Leave a Message

Thank you for your message. We will be in touch with you shortly.

Explore My Properties

Property Description

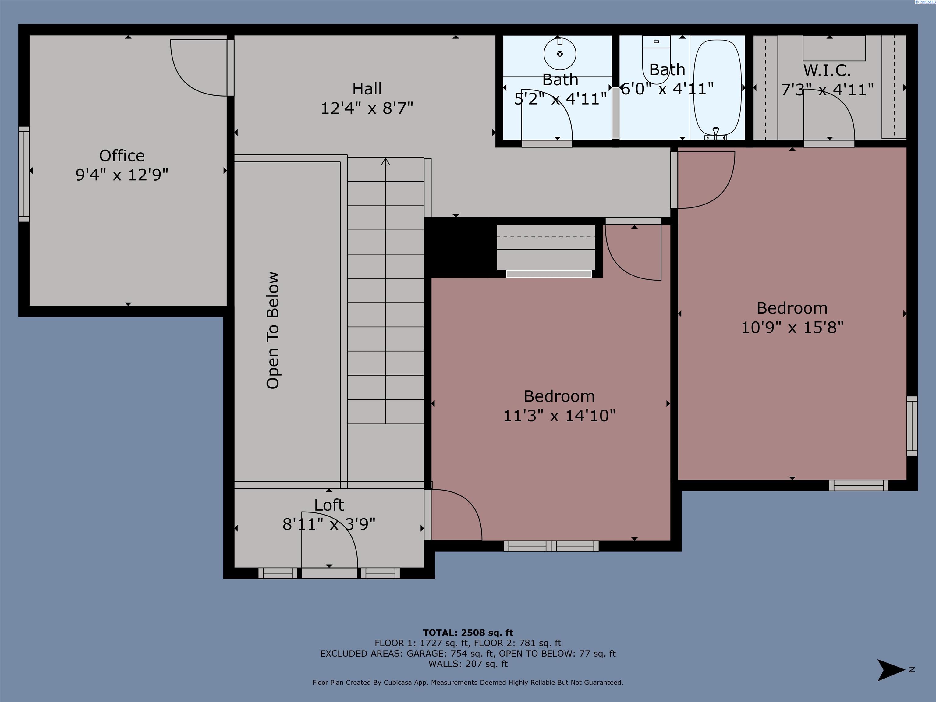
MLS# 285958 Located in Applewood Estates this 2 story home offers 2722 square feet on a spacious corner/cul-de-sac lot with rock and iron fencing, large covered deck, gardening boxes and entertainment space. Inside is a make sense floor plan with solid flooring throughout and lots of natural light controlled by custom plantation shutters. The front entryway opens to a large living room, dining and stairway. The updated kitchen has plenty of room for multiple chefs with its cook top island, wall oven, pantry, abundant cabinetry and plenty of work surface. All open to a cozy family space with fireplace and access to the backyard. Master on the main floor has a walk-in closet and the private bathroom has been updated with a roomy step-in shower, garden tub and double vanity. Upstairs has an addition updated bathroom, two good sized bedrooms (one offering front balcony access) and an office/den or 4th bedroom space.

Overview

Property Status
Sold
Lot Size
10,454.4 Sq.Ft.
MLS ID
285958
Property Type
Residential
Year Built
2002

Features & Amenities

Total Area
2,722 Sq.Ft.
Neighborhood
Richland
Stories
2
Garage Spaces
3.0
Water Source
Public
Utilites
Electricity Connected, Natural Gas Connected, Sewer Connected
Roof
Composition
Lot Features
Located in City Limits, Plat Map - Recorded, Garden, Corner Lot, Cul-De-Sac
Parking
Attached, Garage Door Opener, Finished, 3 car
Heat Type
Heat Pump
Air Conditioning
Heat Pump
Laundry Room
Laundry Room
Fireplace
1, Family Room
Appliances
Appliances-Electric, Cooktop, Dishwasher, Microwave, Oven, Refrigerator
Other Interior Features
Bath - Master, Breakfast Bar, Dining - Formal, Room - Den, Room - Family, Master - Main Level, Soaking Tub, Walk-In Closet(s), Entrance Foyer, Kitchen Island, Master Suite, Pantry, Counters - Granite/Quartz, Vaulted Ceiling(s), Ceiling Fan(s), Utility Sink
Substructure
Concrete Perimeter
Other Exterior Features
Irrigation
School District
Richland
Sales Price
$620,000
Real Estate Tax
$5,000/yr
HOA
$120/yr
Zoning
SINGLE FAMILY R

Downloads

1251 Fuji Way

Schedule a Tour

I would love to help you see this beautiful home! As a full-service real estate agent, I can help you tour. Please submit an offer, and answer questions about the buying process.

Thank you

for your interest in 1251 Fuji Way, Richland, WA 99352

1251 Fuji Way
Navigate
South Richland Washington Aerial View

Explore Richland

Richland is known for its beautiful riverfront parks, strong science and research community, and well-established neighborhoods. Many professionals and families are drawn to Richland for its schools, outdoor recreation, and proximity to major employers in the Tri-Cities. Buyers searching for homes for sale in Richland WA often appreciate the balance of lifestyle and opportunity the city offers.

read more

I'm Interested In

1251 Fuji Way

or
  • CallAlessandra Dearing

    License #141041

    (509) 416-6965
  • Browse Our

    Notable Listings & Sales

    Browse my current and sold listings online or contact me for further information.

    • 10124 W 16th Pl. Sold

      $699,000

      10124 W 16th Pl., Kennewick, WA 99338

      • 5 Beds
      • 3 Baths
      • 3,093 Sq.Ft.
    • 4211 Tamarack Rd Pending

      $699,000

      4211 Tamarack Rd, West Richland, WA 99353

      • 4 Beds
      • 4 Baths
      • 3,039 Sq.Ft.
    • 232 Somerset St Sold

      $678,000

      232 Somerset St, Richland, WA 99354

      • 4 Beds
      • 3 Baths
      • 2,708 Sq.Ft.
    • 1251 Fuji Way Sold

      $620,000

      1251 Fuji Way, Richland, WA 99352

      • 3 Beds
      • 3 Baths
      • 2,722 Sq.Ft.
    • 3596 Hanstead Sold

      $585,000

      3596 Hanstead, Richland, WA 99352

      • 4 Beds
      • 3 Baths
      • 2,691 Sq.Ft.
    • 387 Epic Street Sold

      $584,900

      387 Epic Street, Richland, WA 99352

      • 4 Beds
      • 2 Baths
      • 2,190 Sq.Ft.
    • 2458 Brodie Lane Sold

      $550,900

      2458 Brodie Lane, Richland, WA 99352

      • 4 Beds
      • 2 Baths
      • 2,575 Sq.Ft.
    • 602 Napa Ct Sold

      $550,800

      602 Napa Ct, Richland, WA 99352

      • 3 Beds
      • 2 Baths
      • 2,036 Sq.Ft.
    • 10129 W 16th Pl Sold

      $550,000

      10129 W 16th Pl, Kennewick, WA 99338

      • 4 Beds
      • 2 Baths
      • 2,050 Sq.Ft.
    • 276 Snake River Drive Sold

      $540,000

      276 Snake River Drive, Burbank, WA 99323

      • 3 Beds
      • 4 Baths
      • 2,002 Sq.Ft.
    • 4317 Parley Dr Sold

      $537,000

      4317 Parley Dr, Pasco, WA 99301

      • 4 Beds
      • 3 Baths
      • 2,389 Sq.Ft.
    • 5014 Smitty Dr Sold

      $530,000

      5014 Smitty Dr, Richland, WA 99352

      • 3 Beds
      • 2 Baths
      • 1,873 Sq.Ft.
    • 4905 Corinth Dr Sold

      $513,368

      4905 Corinth Dr, Pasco, WA 99301

      • 3 Beds
      • 2 Baths
      • 2,046 Sq.Ft.
    • 1621 Sanford Ave Sold

      $500,000

      1621 Sanford Ave, Richland, WA 99354

      • 4 Beds
      • 3 Baths
      • 2,744 Sq.Ft.
    • 7806 W Dradie St Sold

      $500,000

      7806 W Dradie St, Pasco, WA 99301

      • 4 Beds
      • 3 Baths
      • 2,432 Sq.Ft.
    • 6115 W 8th Ave. Sold

      $495,000

      6115 W 8th Ave., Kennewick, WA 99336

      • 3 Beds
      • 3 Baths
      • 2,294 Sq.Ft.
    • 1723 Birch Ave Sold

      $455,000

      1723 Birch Ave, Richland, WA 99354

      • 5 Beds
      • 3 Baths
      • 2,644 Sq.Ft.
    • 504 S Wilson St Sold

      $450,000

      504 S Wilson St, Kennewick, WA 99336

      • 3 Beds
      • 2 Baths
      • 1,969 Sq.Ft.
    • 50 Canyon Street Sold

      $450,000

      50 Canyon Street, Richland, WA 99352

      • 3 Beds
      • 3 Baths
      • 2,308 Sq.Ft.
    • 1584 Cimarron Ave Sold

      $436,450

      1584 Cimarron Ave, Richland, WA 99352

      • 5 Beds
      • 3 Baths
      • 2,318 Sq.Ft.
    • 4815 Catalonia Dr Sold

      $432,482

      4815 Catalonia Dr, Pasco, WA 99301

      • 3 Beds
      • 2 Baths
      • 1,626 Sq.Ft.
    • 1908 Crab Apple Circle Sold

      $430,000

      1908 Crab Apple Circle, West Richland, WA 99353

      • 5 Beds
      • 3 Baths
      • 3,219 Sq.Ft.
    • 506 Surrey Court Sold

      $430,000

      506 Surrey Court, Richland, WA 99354

      • 3 Beds
      • 3 Baths
      • 1,724 Sq.Ft.
    • 740 Snowking Street Sold

      $429,990

      740 Snowking Street, Richland, WA 99352

      • 3 Beds
      • 2 Baths
      • 1,408 Sq.Ft.
    • 2009 W 30th Place Sold

      $425,000

      2009 W 30th Place, Kennewick, WA 99337

      • 4 Beds
      • 3 Baths
      • 2,012 Sq.Ft.
    • 6035 Kona Drive Sold

      $425,000

      6035 Kona Drive, West Richland, WA 99353

      • 3 Beds
      • 2 Baths
      • 1,558 Sq.Ft.
    • 2695 Maidstone St Sold

      $420,000

      2695 Maidstone St, Richland, WA 99354

      • 2 Beds
      • 3 Baths
      • 1,913 Sq.Ft.
    • 6802 E Pendleton Rd Sold

      $420,000

      6802 E Pendleton Rd, Benton City, WA 99320

      • 3 Beds
      • 2 Baths
      • 1,566 Sq.Ft.
    • 315 Thayer Drive Sold

      $419,000

      315 Thayer Drive, Richland, WA 99352

      • 4 Beds
      • 2 Baths
      • 2,707 Sq.Ft.
    • 1124 W Park Hills Dr. Sold

      $415,000

      1124 W Park Hills Dr., Kennewick, WA 99337

      • 4 Beds
      • 2 Baths
      • 1,912 Sq.Ft.
    • 239 Cottonwood Drive Sold

      $410,000

      239 Cottonwood Drive, Richland, WA 99352

      • 4 Beds
      • 2 Baths
      • 2,205 Sq.Ft.
    • 5715 Fillmore Sold

      $405,000

      5715 Fillmore, Pasco, WA 99301

      • 4 Beds
      • 3 Baths
      • 1,969 Sq.Ft.
    • 3583 Waterford St. Sold

      $404,000

      3583 Waterford St., Richland, WA 99352

      • 3 Beds
      • 2 Baths
      • 1,622 Sq.Ft.
    • 5607 Tieton Ln Sold

      $399,000

      5607 Tieton Ln, Pasco, WA 99301

      • 3 Beds
      • 2 Baths
      • 1,440 Sq.Ft.
    • 1430 W 24th Lp Sold

      $395,000

      1430 W 24th Lp, Kennewick, WA 99337

      • 3 Beds
      • 2 Baths
      • 1,540 Sq.Ft.
    • 6118 Tyre Drive Sold

      $388,287

      6118 Tyre Drive, Pasco, WA 99301

      • 3 Beds
      • 2 Baths
      • 1,235 Sq.Ft.
    • 4212 Meadowsweet St Sold

      $385,000

      4212 Meadowsweet St, Pasco, WA 99301

      • 3 Beds
      • 2 Baths
      • 1,357 Sq.Ft.
    • 2702 Iris St. Sold

      $375,500

      2702 Iris St., West Richland, WA 99353

      • 3 Beds
      • 2 Baths
      • 1,134 Sq.Ft.
    • 3114 W Ella St. Sold

      $375,000

      3114 W Ella St., Pasco, WA 99301

      • 3 Beds
      • 2 Baths
      • 1,452 Sq.Ft.
    • 72810 Homestead Rd For Sale

      $375,000

      72810 Homestead Rd, Kennewick, WA 99338

    • 5830 gray st Sold

      $370,000

      5830 Gray St, West Richland, WA 99353

      • 3 Beds
      • 2 Baths
      • 1,734 Sq.Ft.
    • 1316 Sacramento Blvd Sold

      $365,000

      1316 Sacramento Blvd, Richland, WA 99354

      • 3 Beds
      • 2 Baths
      • 1,575 Sq.Ft.
    • 1202 Richmond Blvd. Sold

      $364,000

      1202 Richmond Blvd., Richland, WA 99354

      • 4 Beds
      • 1 Bath
      • 1,727 Sq.Ft.
    • 3826 W Grand Ronde Sold

      $360,000

      3826 W Grand Ronde, Kennewick, WA 99336

      • 3 Beds
      • 2 Baths
      • 1,316 Sq.Ft.
    • 1313 Cottonwood Drive Sold

      $358,000

      1313 Cottonwood Drive, Richland, WA 99354

      • 3 Beds
      • 2 Baths
      • 1,542 Sq.Ft.
    • 22 N Newport St Sold

      $355,000

      22 N Newport St, Kennewick, WA 99336

      • 4 Beds
      • 2 Baths
      • 1,441 Sq.Ft.
    • 626 Snow Ave Sold

      $347,000

      626 Snow Ave, Richland, WA 99352

      • 3 Beds
      • 2 Baths
      • 1,061 Sq.Ft.
    • 6409 Damon Point Drive Sold

      $344,900

      6409 Damon Point Drive, Pasco, WA 99301

      • 2 Beds
      • 2 Baths
      • 1,008 Sq.Ft.
    • 529 Wisteria St Sold

      $341,500

      529 Wisteria St, Richland, WA 99352

      • 3 Beds
      • 2 Baths
      • 1,539 Sq.Ft.
    • 2402 S Conway St. Sold

      $340,000

      2402 S Conway St., Kennewick, WA 99337

      • 3 Beds
      • 2 Baths
      • 1,716 Sq.Ft.
    View All

    Follow Us On Instagram